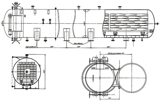
Автоклавы
Автоклавы, выпускаемые предприятием, могут использоваться в химической, нефтехимической отраслях промышленности.

Основные параметры:
- Материальное исполнение – углеродистая сталь;
- Климатическое исполнение – до -400С;
- Объем 20 м3, 32 м3, 54 м3;
- Хомутовый затвор – Dу-2000 мм;
- Рабочее давление – до 1,0 МПа;
- Рабочая температура – до +2000С;
|